5 000 000 Р 63 300 $ или 54 330

Информация об помещении

1
Этаж

Состояние и оснащение

Количество этажей
1
Развернуть
Агент
+7 (911) 391-39-62
Начать чат с агентом

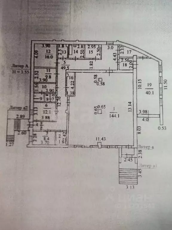
Торговая площадь в Псковская область, Остров Строитель мкр, 12 (333 м)

Продается помещение бывшего магазина. Здание кирпичное, полы бетонные. Все коммуникации центральные. Электричество 30 кВт, есть возможность добавить, при необходимости. Здание в хорошем состоянии, располагается в жилом районе города. Можно использовать в коммерческих целях, под магазины, кулинарию, кафе, и под другие виды общественного пользования. Подъезд к зданию, асфальтная дорога. Также рассматриваем аренду. Документы в порядке. Покажем в удобное для Вас время. Код пользователя:Номер в базе: 3305264

Читать полностью
    Позвонить Написать
    5 000 000 Р63 300 $ или 54 330
    Агент
    +7 (911) 391-39-62
    Начать чат с агентом
    Похожие предложения
    Торговая площадь в Башкортостан, Стерлитамак ул. Артема, 149 (182 м) - Фото 1
    Торговая площадь в Башкортостан, Стерлитамак ул. Артема, 149 (182 м) - Фото 2
    В продаже коммерческое помещение свободного назначения в цокольном этаже ,. Площадь 181,6 м2. Заведены все коммуникации: отопление, свет, вода, канализация. Надежные арендаторы. Долгосрочный договор. Транспортная доступность. Все документы готовы к сделке....
    • 1/9 эт.
    5 000 000 Р
    Агент
    +7 (908) Показать номер
    Посмотреть контакты
    Торговая площадь в Пермский край, Соликамск Северная ул., 84 (68 м) - Фото 1
    Торговая площадь в Пермский край, Соликамск Северная ул., 84 (68 м) - Фото 2
    В продаже помещение с отдельным входом со стороны ул. Северная.Локация отличная. - В шаговой доступности остановки общественного транспорта и развязка в целом. - Достаточная удаленность от соц объектов. - Хороший авто трафик.- Парковочные карманы прямо...
    • 1/5 эт.
    5 000 000 Р
    Агент
    +7 (982) Показать номер
    Посмотреть контакты
    Торговая площадь в Белгородская область, Шебекино ул. Ленина, 12 (46 ... - Фото 1
    Торговая площадь в Белгородская область, Шебекино ул. Ленина, 12 (46 ... - Фото 2
    Помещение площадью 46 кв. м расположено в центре Шебекино, на первой линии улицы с высокой проходимостью. Удобная транспортная доступность — в шаговой доступности остановка общественного транспорта, что обеспечивает постоянный поток людей. Рядом расположен...
    • 1/2 эт.
    4 900 000 Р
    Агент
    +7 (910) Показать номер
    Посмотреть контакты
    Торговая площадь в Новосибирская область, Новосибирск ул. Бориса ... - Фото 1
    Торговая площадь в Новосибирская область, Новосибирск ул. Бориса ... - Фото 2
    Предлагается к продаже помещение в ТЦ Золотая нива на втором этаже здания. Помещение разграничено перегородками на три отдельных помещения, каждое из которых в аренде. Торговый центр расположен у станции метро Золотая нива , и к его территории прилегает...
    • 2/2 эт.
    4 980 000 Р
    Агент
    +7 (994) Показать номер
    Посмотреть контакты
    Торговая площадь в Калужская область, Бабынинский район, Утешево ... - Фото 1
    Торговая площадь в Калужская область, Бабынинский район, Утешево ... - Фото 2
    Арт.Продается здание - магазин ( готовый бизнес ). 2019 года постройки По адресу : Калужская область , Бабынинский район , д. Куракино , д 6Общая площадь : 90,4 м2Земельный участок 4 сотки .В помещении имеется :Отопление индивидуальное АОГВ Электричество...
    • 1/1 эт.
    4 900 000 Р
    Агент
    +7 (919) Показать номер
    Посмотреть контакты

    Не нашли подходящего объявления?

    Оставьте заявку, и наши риэлторы подберут торговое помещение в районе Острова

    (0)