2 300 000 Р 28 090 $ или 24 280

Информация об помещении

1
Этаж

Состояние и оснащение

Количество этажей
3
Развернуть
Агент
+7 (911) 360-52-59
Начать чат с агентом

Помещение свободного назначения в Псковская область, Пустошка ...

Продается помещение на первом этаже, в центре города Пустошка. Общая площадь 64 кв. м (кабинеты 29 кв. м; 19,2 кв. м и коридор). Есть постоянный арендатор. Вход в помещение отдельный, с торца. Год постройки здания 1975. Фундамент железобетонный, стены кирпичные, перекрытия ж/бетонные. Коммуникации центральные: отопление, электроснабжение, водоснабжение (холодное), канализация.Земельный участок под зданием в аренде до 2025 г.В здании расположена почта. В окружении активная деловая и коммерческая инфраструктура (администрация, магазины, кафе, детский сад, спортивный зал). Парковка у здания. В непосредственной близости остановки общественного транспорта. Есть возможность размещения рекламной конструкции на фасаде, подключения городского телефона, высокоскоростного Интернета. Осмотр по предварительной договоренности.Продажа от собственника — ПАО Ростелеком . Цена указана с учетом НДС 22 . Звоните С удовольствием ответим на все вопросы.

Читать полностью
    Позвонить Написать
    2 300 000 Р28 090 $ или 24 280
    Агент
    +7 (911) 360-52-59
    Начать чат с агентом
    Похожие предложения
    Помещение свободного назначения в Краснодарский край, Краснодар ул. ... - Фото 1
    Помещение свободного назначения в Краснодарский край, Краснодар ул. ... - Фото 2
    Помещение располагается на фасаде. напротив большая стихийная парковка, автобусная остановка, большой трафик.пл.34кв правильной формы без труб, полноценные окна. общий с/у на этаже, возможно сделать свой. документы готовы к сделке. собственник без посредников...
    • -1/16 эт.
    2 350 000 Р
    Агент
    +7 (918) Показать номер
    Посмотреть контакты
    Помещение свободного назначения в Крым, Евпатория просп. Победы, 4 (12 ... - Фото 1
    Помещение свободного назначения в Крым, Евпатория просп. Победы, 4 (12 ... - Фото 2
    Объект 1015. В продаже коммерческое помещение площадью 9.1м2 в Консоль центре. Расположенного на втором этаже двух этажного здания. Сделан ремонт, всe в хорошем и исправном состоянии Можно использовать под кабинет для уcлуг кpасоты, oфиc, шоурум и мнoгoе...
    • 2/2 эт.
    2 200 000 Р
    Агент
    +7 (989) Показать номер
    Посмотреть контакты
    Помещение свободного назначения в Ханты-Мансийский АО, Нижневартовск ... - Фото 1
    Помещение свободного назначения в Ханты-Мансийский АО, Нижневартовск ... - Фото 2
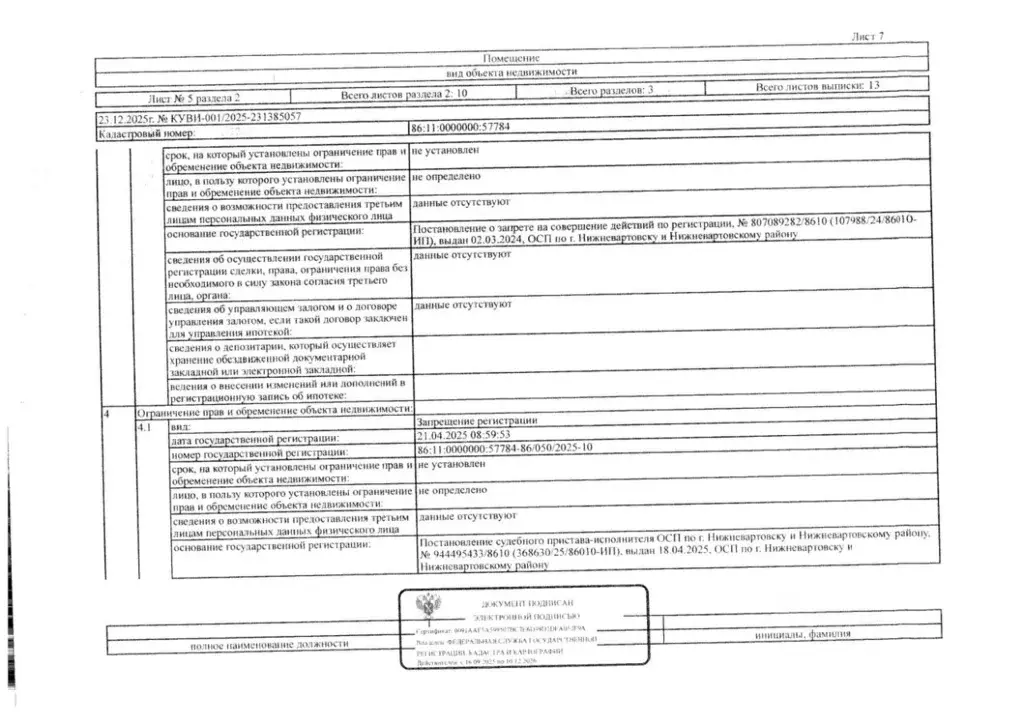
    Данные получены с сайта ГИС Торги.Должник: ООО Аксум , собственник: ООО Аксум Лот: Нежилое помещение, площадь 136,7 кв.м., кадастровый номер: 86:11:0000000:57784, г. Нижневартовск, п. Магистраль, д. 17а, пом. 1001, н/ц:., з-к:., код: 0001, рег. 26-72-ГМУ;...
    2 236 100 Р
    Агент
    +7 (912) Показать номер
    Посмотреть контакты
    Помещение свободного назначения в Волгоградская область, Волгоград ... - Фото 1
    Помещение свободного назначения в Волгоградская область, Волгоград ... - Фото 2
    Код объекта: 1693343.Продается коммерческое помещение (подвал) в статусе нежилоеядом с гостиницей Южный, Ворошиловский район, Академическая улица, 11.Общая площадь: 242,2 кв. метров.Помещение имеет отдельный вход через служебный выход магазина Магнит....
    • -1/5 эт.
    2 400 000 Р
    Агент
    +7 (918) Показать номер
    Посмотреть контакты
    Помещение свободного назначения в Нижегородская область, Семенов ул. ... - Фото 1
    Помещение свободного назначения в Нижегородская область, Семенов ул. ... - Фото 2
    Данные получены с сайта ГИС Торги.Нежилое помещение, общей площадью 82,1 кв.м., этажность — 1, с кадастровым номером 52:12:1800321:10575, расположенное по адресу: РФ, Нижегородская область, городской округ Семеновский, город Семенов, улица Чкалова, дом...
    2 200 000 Р
    Агент
    +7 (987) Показать номер
    Посмотреть контакты

    Не нашли подходящего объявления?

    Оставьте заявку, и наши риэлторы подберут псн в районе Пустошки

    (0)