Реализация объекта недвижимости приостановлена

Информация о квартире

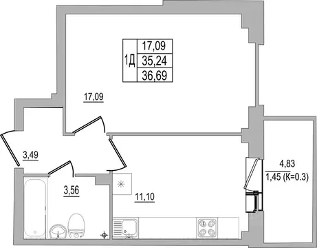
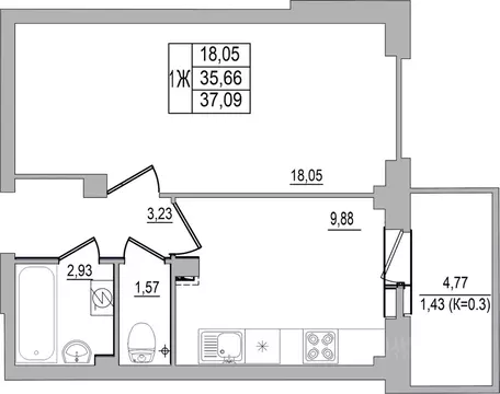
37.0 м2
Площадь
10.0 м2
Жилая
18.0 м2
Кухня
1
Комната
4
Этаж
13
Этажность
Развернуть

1-к кв. Псковская область, Псков ул. Ижорского Батальона, 17 (37.69 м)

Продаётся 1-комнатная квартира в строящемся доме (Дом 17), срок сдачи: III-кв. 2024, общей площадью 37.69 кв.м., на 4 этаже. Жилой комплекс Заречье Park представляет собой 13-этажный монолитно-кирпичный жилой дом. Застройщиком спроектированы квартиры с различными планировками: от одно до двухкомнатных. Благоустройство прилегающей территории включает в себя строительство детской площадки, а также зон отдыха. Предусмотрены открытые гостевые парковки. В шаговой доступности находятся детские сады, школы, медицинские учреждения, аптеки, магазины.

Читать полностью

    Реализация объекта недвижимости приостановлена

    Не нашли подходящего объявления?

    Оставьте заявку, и наши риэлторы подберут квартиру в новостройке в районе Пскова

    (0)