Реализация объекта недвижимости приостановлена
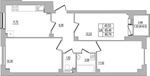
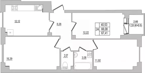
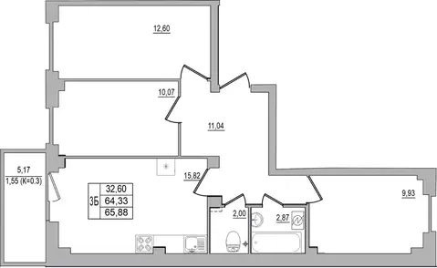
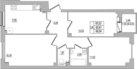
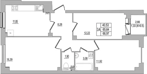
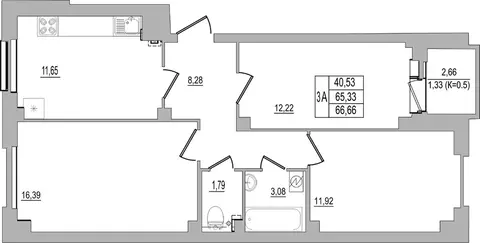
Продаётся 3-комнатная квартира в строящемся доме (Дом 32 (2 этап)), срок сдачи: III-кв. 2026, общей площадью 65.53 кв.м., на 8 этаже. Строительство многоквартирных жилых домов на улице Юности.
Реализация объекта недвижимости приостановлена
Оставьте заявку, и наши риэлторы подберут квартиру в новостройке в районе Пскова
