6 790 700 Р 82 920 $ или 70 700

Информация о квартире

76 м2
Площадь
26 м2
Жилая
28 м2
Кухня
2
Комнаты
16
Этаж
16
Этажность

Дополнительная информация

Тип дома
монолит
Развернуть
Агент
Псковская реставрационная мастерская (застройщик)
+7 (939) 409-94-77
Начать чат с агентом

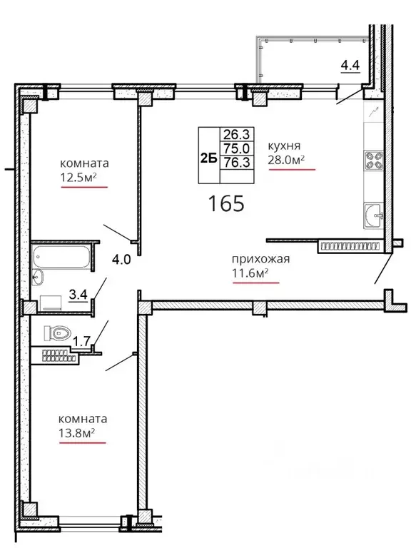
2-к кв. Псковская область, Псков ул. Алексея Алехина, 14 (76.3 м)

Продается 2-комнатная квартира, 76.30 кв. м, по адресу Россия, Псковская область, г. Псков, ул. Алёхина, 14. Этаж 16/16.Рассрочка 0 - Первый взнос 30 с ежеквартальной оплатой в течении 12 месяцев.- Первый взнос 40 с внесением оставшейся суммы через 6 месяцев.- Первый взнос 50 с внесением оставшейся суммы через 12 месяцев.Квартира в кирпично-монолитном доме ЖК Сити от надежного Псковского застройщика ГК Реставрационная мастерская (дата основания 1946 год)Место:Дом располагается в благоустроенном районе города Пскова. В шаговой доступности есть все:- общеобразовательная школа (во дворе дома);- 2 детских сада ;- магазины и пункты выдачи В настоящее время район продолжает активно развиваться, Дом удачно территориально расположен, рядом Река Великая, зоны отдыха на природе, нет автомобильных пробок, которые свойственны многим районам города.Наши стандарты:- Высота потолков в чистоте 2,70 м.- Контроль доступа и видеонаблюдение.- Качественные окна и входные металлические двери.- Авторский дизайн мест общего пользования.- Территория полностью благоустроена, большая детская игровая зона на травмо-безопасном покрытии.- Возможно выполнение отделки Под ключ по фиксированной цена с гарантией Застройщика (в т.ч. с включением в ипотеку);- Ваши деньги в полной безопасности- оформление в строгом соответствии с ФЗ-214, через эскроу-счета, никаких серых схем -Помощь в одобрении ипотекиРаботаем:- Ипотека (любая)- Рассрочка- Сертификаты.Квартира продается надежным Застройщиком, - ГК Реставрационная мастерская , 100 гарантия юридической чистоты.Мы всегда готовы обсудить индивидуальные условия.Заходите к нам в центральный офис продаж по адресу: г. Псков, ул. Линейная, д. 3, звоните, пишите, если не ответили сразу- обязательно Вам перезвоним.Вышлем фото и видео, проведем онлайн показ и дистанционноеоформление сделки.На объекте работает офис продаж (предварительная запись)Полное сопровождение Застройщика, все хлопоты берем на себя

Читать полностью
    Позвонить Написать
    6 790 700 Р82 920 $ или 70 700
    Агент
    Псковская реставрационная мастерская (застройщик)
    +7 (939) 409-94-77
    Начать чат с агентом
    Похожие предложения в Пскове
    2-к кв. Псковская область, Псков ул. Алексея Алехина, 14 (76.5 м) - Фото 1
    2-к кв. Псковская область, Псков ул. Алексея Алехина, 14 (76.5 м) - Фото 2
    2-комнатная квартира, общая площадь 76м², жилая 26м², кухня 28м²

    Продается 2-комнатная квартира, 76.50 кв. м, по адресу Россия, Псковская область, г. Псков, ул. Алёхина, 14. Этаж 12/16.Рассрочка 0 - Первый взнос 30 с ежеквартальной оплатой в течении 12 месяцев.- Первый взнос 40 с внесением оставшейся суммы через...
    • 76 м²
    • 2-ком
    • 12/16 эт.
    • монолит
    6 808 500 Р
    Агент
    +7 (939) Показать номер
    Посмотреть контакты
    2-к кв. Псковская область, Псков ул. Алексея Алехина, 14 (76.3 м) - Фото 1
    2-к кв. Псковская область, Псков ул. Алексея Алехина, 14 (76.3 м) - Фото 2
    2-комнатная квартира, общая площадь 76м², жилая 26м², кухня 28м²

    Продается 2-комнатная квартира, 76.30 кв. м, по адресу Россия, Псковская область, г. Псков, ул. Алёхина, 14. Этаж 15/16.Рассрочка 0 - Первый взнос 30 с ежеквартальной оплатой в течении 12 месяцев.- Первый взнос 40 с внесением оставшейся суммы через...
    • 76 м²
    • 2-ком
    • 15/16 эт.
    • монолит
    6 790 700 Р
    Агент
    +7 (939) Показать номер
    Посмотреть контакты
    2-к кв. Псковская область, Псков ул. Алексея Алехина, 14 (76.5 м) - Фото 1
    2-к кв. Псковская область, Псков ул. Алексея Алехина, 14 (76.5 м) - Фото 2
    2-комнатная квартира, общая площадь 76м², жилая 26м², кухня 28м²

    Продается 2-комнатная квартира, 76.50 кв. м, по адресу Россия, Псковская область, г. Псков, ул. Алёхина, 14. Этаж 11/16.Рассрочка 0 - Первый взнос 30 с ежеквартальной оплатой в течении 12 месяцев.- Первый взнос 40 с внесением оставшейся суммы через...
    • 76 м²
    • 2-ком
    • 11/16 эт.
    • монолит
    6 808 500 Р
    Агент
    +7 (939) Показать номер
    Посмотреть контакты
    2-к кв. Псковская область, Псков ул. Алексея Алехина, 14 (76.4 м) - Фото 1
    2-к кв. Псковская область, Псков ул. Алексея Алехина, 14 (76.4 м) - Фото 2
    2-комнатная квартира, общая площадь 76м², жилая 26м², кухня 28м²

    Продается 2-комнатная квартира, 76.40 кв. м, по адресу Россия, Псковская область, г. Псков, ул. Алёхина, 14. Этаж 14/16.Рассрочка 0 - Первый взнос 30 с ежеквартальной оплатой в течении 12 месяцев.- Первый взнос 40 с внесением оставшейся суммы через...
    • 76 м²
    • 2-ком
    • 14/16 эт.
    • монолит
    6 799 600 Р
    Агент
    +7 (939) Показать номер
    Посмотреть контакты
    2-к кв. Псковская область, Псков ул. Алексея Алехина, 14 (76.7 м) - Фото 1
    2-к кв. Псковская область, Псков ул. Алексея Алехина, 14 (76.7 м) - Фото 2
    2-комнатная квартира, общая площадь 76м², жилая 26м², кухня 28м²

    Продается 2-комнатная квартира, 76.70 кв. м, по адресу Россия, Псковская область, г. Псков, ул. Алёхина, 14. Этаж 10/16.Рассрочка 0 - Первый взнос 30 с ежеквартальной оплатой в течении 12 месяцев.- Первый взнос 40 с внесением оставшейся суммы через...
    • 76 м²
    • 2-ком
    • 10/16 эт.
    • монолит
    6 826 300 Р
    Агент
    +7 (939) Показать номер
    Посмотреть контакты

    Не нашли подходящего объявления?

    Оставьте заявку, и наши риэлторы подберут квартиру в новостройке в районе Пскова

    (0)