3 092 920 Р 38 190 $ или 32 700

Информация о квартире

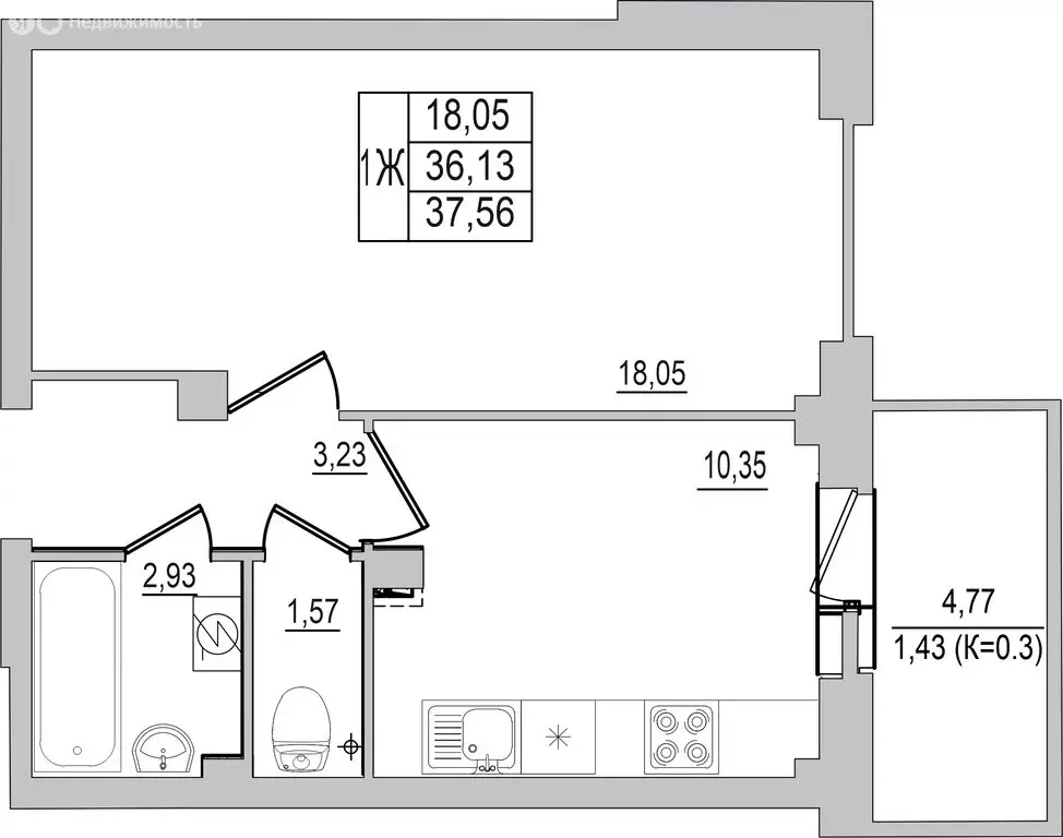
37 м2
Площадь
10 м2
Кухня
1
Комната
1
Этаж
10
Этажность
Развернуть
Агент
+7 (981) 361-33-45
Начать чат с агентом

1-комнатная квартира: Псков, улица Юности, 32 (37.56 м)

Продается 1-комнатная квартира №111 в строящемся доме на ул. Юности, 32 (2 этап строительства).Юности 32 - это кирпично-монолитный дом переменной этажности в ЖК SMART . SMART - развитый, при этом уютный район. Транспортное сообщение, школа, детский сад, магазины, торговые центры – всё в шаговой доступности Квартиры в этом доме продаются как с отделкой, так и без. Выбор за вами) Наши высококвалифицированные менеджеры подберут самый выгодный вариант, полностью сопроводив Вас от заявки и до получения ключей.*По указанной цене квартиру можно приобрести за собственные средства и в ипотеку ВТБ.

Читать полностью
    Позвонить Написать
    3 092 920 Р38 190 $ или 32 700
    Агент
    +7 (981) 361-33-45
    Начать чат с агентом
    Похожие предложения в Пскове
    1-к кв. Псковская область, Псков ул. Юности, 32 (36.53 м) - Фото 1
    1-к кв. Псковская область, Псков ул. Юности, 32 (36.53 м) - Фото 2
    1-комнатная квартира, общая площадь 36м², кухня 17м²

    Продаётся 1-комнатная квартира в строящемся доме (Дом 32 (2 этап)), срок сдачи: III-кв. 2026, общей площадью 36.53 кв.м., на 7 этаже. Строительство многоквартирных жилых домов на улице Юности.
    • 36 м²
    • 1-ком
    • 7/10 эт.
    3 154 580 Р
    Агент
    +7 (939) Показать номер
    Посмотреть контакты
    1-к кв. Псковская область, Псков ул. Юности, 32 (36.84 м) - Фото 1
    1-к кв. Псковская область, Псков ул. Юности, 32 (36.84 м) - Фото 2
    1-комнатная квартира, общая площадь 36м², жилая 18м², кухня 9м²

    Продаётся 1-комнатная квартира в строящемся доме (Дом 32 (1 этап)), срок сдачи: IV-кв. 2025, общей площадью 36.84 кв.м., на 9 этаже. Строительство многоквартирных жилых домов на улице Юности.
    • 36 м²
    • 1-ком
    • 9/10 эт.
    3 181 240 Р
    Агент
    +7 (939) Показать номер
    Посмотреть контакты
    1-к кв. Псковская область, Псков ул. Юности, 32 (36.9 м) - Фото 1
    1-к кв. Псковская область, Псков ул. Юности, 32 (36.9 м) - Фото 2
    1-комнатная квартира, общая площадь 36м², жилая 17м², кухня 11м²

    Продаётся 1-комнатная квартира в строящемся доме (Дом 32 (1 этап)), срок сдачи: IV-кв. 2025, общей площадью 35.43 кв.м., на 8 этаже. Строительство многоквартирных жилых домов на улице Юности.
    • 36 м²
    • 1-ком
    • 8/10 эт.
    3 167 950 Р
    Агент
    +7 (939) Показать номер
    Посмотреть контакты
    1-к кв. Псковская область, Псков ул. Юности, 32 (37.04 м) - Фото 1
    1-к кв. Псковская область, Псков ул. Юности, 32 (37.04 м) - Фото 2
    1-комнатная квартира, общая площадь 37м², жилая 17м², кухня 11м²

    Продаётся 1-комнатная квартира в строящемся доме (Дом 32 (1 этап)), срок сдачи: IV-кв. 2025, общей площадью 35.43 кв.м., на 6 этаже. Строительство многоквартирных жилых домов на улице Юности.
    • 37 м²
    • 1-ком
    • 6/10 эт.
    3 179 920 Р
    Агент
    +7 (939) Показать номер
    Посмотреть контакты
    1-к кв. Псковская область, Псков ул. Юности, 32 (37.18 м) - Фото 1
    1-к кв. Псковская область, Псков ул. Юности, 32 (37.18 м) - Фото 2
    1-комнатная квартира, общая площадь 37м², жилая 17м², кухня 11м²

    Продаётся 1-комнатная квартира в строящемся доме (Дом 32 (1 этап)), срок сдачи: IV-кв. 2025, общей площадью 35.43 кв.м., на 4 этаже. Строительство многоквартирных жилых домов на улице Юности.
    • 37 м²
    • 1-ком
    • 4/10 эт.
    3 191 890 Р
    Агент
    +7 (939) Показать номер
    Посмотреть контакты

    Не нашли подходящего объявления?

    Оставьте заявку, и наши риэлторы подберут квартиру в новостройке в районе Пскова

    (0)