Реализация объекта недвижимости приостановлена

Информация о квартире

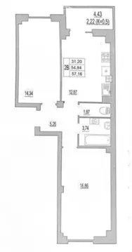
57.0 м2
Площадь
29.0 м2
Жилая
12.0 м2
Кухня
2
Комнаты
9
Этаж
9
Этажность
Развернуть

2-комнатная квартира: Псков, улица Ижорского Батальона, 49 (57.9 м)

Квартира расположена на 9 этаже 9 - ти этажного дома, имеется технический этаж, что обеспечивает повышенную звукоизоляцию и отсутствие соседей сверху. Планировка включает раздельные комнаты и просторную кухню с раздвижным столом, позволяющим комфортно разместиться за семейным обедом. Помещения наполнены естественным светом благодаря эркерным окнам, из которых открывается вид на закрытый двор с детской площадкой. Объект полностью готов к проживанию: выполнено утепление, установлены стеклопакеты, а лоджия оборудована электрическим обогревателем и может использоваться круглый год. Санузел раздельный, часть встроенной мебели остается в собственности. На этаже общий тамбур на две квартиры, что гарантирует дополнительную приватность и тишину. Жилой комплекс имеет охраняемую территорию, выделенные парковочные места и развитую инфраструктуру в шаговой доступности, включая школы, детские сады и супермаркеты. Рядом расположены остановки общественного транспорта с удобными маршрутами в центр города. Это функциональное и уютное жилье, оптимальное для семьи, ценящей спокойствие, комфорт и продуманную организацию быта. Код пользователя: 186121Номер в базе:

Читать полностью

    Реализация объекта недвижимости приостановлена

    Не нашли подходящего объявления?

    Оставьте заявку, и наши риэлторы подберут квартиру в районе Пскова

    (0)