4 800 000 Р 58 600 $ или 51 530

Информация о квартире

61 м2
Площадь
8 м2
Кухня
3
Комнаты
5
Этаж
9
Этажность

Дополнительная информация

Тип дома
панельный
Развернуть
Агент
+7 (911) 360-59-44
Начать чат с агентом

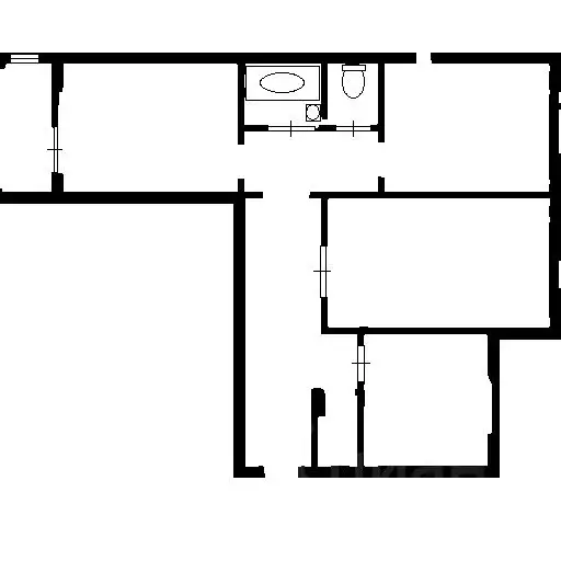
3-к кв. Псковская область, Псков Госпитальная ул., 17 (61.4 м)

Продается 3к.кв на Ближнем Завеличье, по адресу:ул. Госпитальная д.17.Теплая, светлая квартира, на 5 этаже в середине дома.Туалет и ванная комната в кафеле, в остальном требует косметики.Хорошее расположение дома, в шаговой доступности сетевые магазины, лицей Развитие , музыкальная школа, гимназия 29.Один взрослый собственник, свободна от проживая, подходит под все виды оплаты.Номер объекта: 1/539557/5922

Читать полностью

    Для того, чтобы купить трехкомнатную квартиру по адресу: Псков, ул. Госпитальная, 17, позвоните по телефону +7 (911) 360-59-44. Торопитесь! Объявление №30093013561 о продаже трехкомнатной квартиры опубликовано Сегодня.

    Позвонить Написать
    4 800 000 Р58 600 $ или 51 530
    Агент
    +7 (911) 360-59-44
    Начать чат с агентом
    Похожие предложения
    2-к кв. Псковская область, Псков Коммунальная ул., 77 (49.7 м) - Фото 1
    2-к кв. Псковская область, Псков Коммунальная ул., 77 (49.7 м) - Фото 2
    2-комнатная квартира, общая площадь 49м², жилая 37м², кухня 7м²

    Продается двухкомнатная квартира на 9 этаже девятиэтажного дома в престижном и развитом районе Завеличье. Объект отличается выгодным расположением на улице Коммунальной, где в шаговой доступности сосредоточена вся необходимая инфраструктура: торговый...
    • 49 м²
    • 2-ком
    • 9/9 эт.
    • панельный
    4 750 000 Р
    Агент
    +7 (911) Показать номер
    Посмотреть контакты
    2-к кв. Псковская область, Псков Юбилейная ул., 51 (52.4 м) - Фото 1
    2-к кв. Псковская область, Псков Юбилейная ул., 51 (52.4 м) - Фото 2
    2-комнатная квартира, общая площадь 52м², жилая 39м², кухня 7м²

    Продается двухкомнатная квартира, расположенная на втором этаже многоэтажного дома. Площадь квартиры составляет 52.4 квадратных метров, что делает её оптимальным вариантом для небольшой семьи. Когда вы входите в квартиру, вас встречает светлая прихожая,...
    • 52 м²
    • 2-ком
    • 2/5 эт.
    • панельный
    4 900 000 Р
    Агент
    +7 (911) Показать номер
    Посмотреть контакты
    1-к кв. Псковская область, Псков ул. Юности, 22 (37.1 м) - Фото 1
    1-к кв. Псковская область, Псков ул. Юности, 22 (37.1 м) - Фото 2
    1-комнатная квартира, общая площадь 37м², жилая 10м², кухня 19м²

    Продаётся 1-но комнатная квартира удобной евро планировки которая имеет функционал 2-х комнатной квартиры с просторной кухней-гостиной площадью 19 кв. м и отдельной спальней площадью 10 кв. м. Квартира располагается на 6 этаже 9-ти этажного дома 2024...
    • 37 м²
    • 1-ком
    • 6/9 эт.
    • панельный
    4 900 000 Р
    Агент
    +7 (911) Показать номер
    Посмотреть контакты
    2-к кв. Псковская область, Псков ул. Генерала Маргелова, 19 (56.9 м) - Фото 1
    2-к кв. Псковская область, Псков ул. Генерала Маргелова, 19 (56.9 м) - Фото 2
    2-комнатная квартира, общая площадь 56м², кухня 11м²

    Продается двухкомнатная квартира в непосредственной близости к военной части с продуманной планировкой, высокими потолками (2,75 м), большими 2-х камерными стеклопакетами. Квартира свободна от проживания, личных вещей и регистрации собственника, что позволяет...
    • 56 м²
    • 2-ком
    • 1/9 эт.
    • блочный
    4 700 000 Р
    Агент
    +7 (911) Показать номер
    Посмотреть контакты
    3-к кв. Псковская область, Псков Зеленый пер., 3 (78.9 м) - Фото 1
    3-к кв. Псковская область, Псков Зеленый пер., 3 (78.9 м) - Фото 2
    3-комнатная квартира, общая площадь 78м², жилая 45м², кухня 10м²

    Продам 3 комнатную квартиру в городе Пскове, в Зеленом переулке. В районе Кресты, на первом этаже двухэтажного дома расположена просторная, очень светлая и уютная квартира, общей площадью почти 80 метров. На всех окнах и лоджиях установлены стекло пакеты....
    • 78 м²
    • 3-ком
    • 1/2 эт.
    • панельный
    4 900 000 Р
    Агент
    +7 (911) Показать номер
    Посмотреть контакты

    Не нашли подходящего объявления?

    Оставьте заявку, и наши риэлторы подберут квартиру в районе Пскова

    (0)