14 500 000 Р 178 700 $ или 155 200

Информация об помещении

2
Этаж

Состояние и оснащение

Количество этажей
2
Развернуть
Агент
+7 (981) 361-39-86
Начать чат с агентом

Помещение свободного назначения в Псковская область, Псков ул. Леона ...

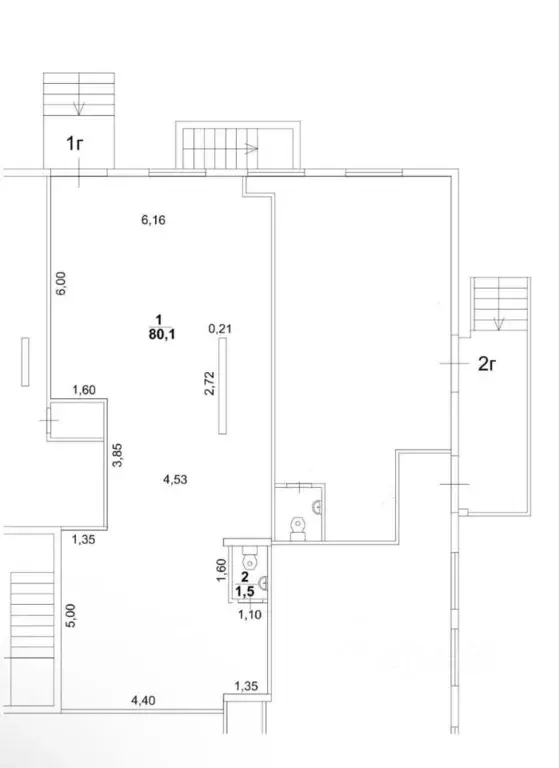
Продается двухэтажное отдельно стоящее здание площадью 54,3 кв. м., предназначенное для коммерческого использования. Объект обладает готовой планировкой, включающей два изолированных офисных помещения, комнату для приема пищи, санузел и дополнительное техническое помещение с усиленной конструкцией, ранее использовавшееся под хранение оружия. Здание полностью подготовлено к работе: -заведено электричество 10 кВт; -функционирует центральное водоснабжение; -установлены электрические конвекторы и пожарно-охранная сигнализация. Помещение полностью меблировано, что позволяет начать бизнес с минимальными затратами на стартовые инвестиции. Универсальная планировка и надежная инфраструктура делают объект идеальным для розничной торговли, сферы услуг, медицинских или бьюти-кабинетов, офиса или небольшого производства. Локация в квартале ДЭУ обеспечивает транспортную доступность: в шаговой доступности находятся остановки общественного транспорта с автобусами 1, 21, 22 и маршрутками 51, 55, а также общественная парковка. Объект сочетает автономность отдельно стоящего строения с преимуществами городской инфраструктуры, предлагая готовое решение для стабильного и рентабельного бизнеса. Код пользователя: 192906Номер в базе: 9752985

Читать полностью
    Позвонить Написать
    14 500 000 Р178 700 $ или 155 200
    Агент
    +7 (981) 361-39-86
    Начать чат с агентом
    Похожие предложения
    Помещение свободного назначения в Псковская область, Остров ул. ... - Фото 1
    Помещение свободного назначения в Псковская область, Остров ул. ... - Фото 2
    В продаже готовый к использованию производственно-офисный комплекс на огороженной территории. Объект идеально подойдет для размещения производства, логистической базы или автопарка благодаря мощным коммуникациям и огромной прилегающей территории.Характеристики...
    • 3/3 эт.
    15 500 000 Р
    Агент
    +7 (981) Показать номер
    Посмотреть контакты
    Готовый бизнес - Фото 1
    Готовый бизнес - Фото 2
    Готовый бизнес - Фото 3
    Готовый бизнес - Фото 4
    Готовый бизнес - Фото 5
    Готовый бизнес - Фото 6
    Готовый бизнес - Фото 7
    Готовый бизнес - Фото 8
    Готовый бизнес - Фото 9
    Готовый бизнес - Фото 10
    Готовый бизнес - Фото 11
    Готовый бизнес - Фото 12
    Готовый бизнес - Фото 13
    Готовый бизнес - Фото 14
    Готовый бизнес - Фото 15
    Готовый бизнес - Фото 16
    Готовый бизнес - Фото 17
    Готовый бизнес - Фото 18
    Готовый бизнес - Фото 19
    Готовый бизнес - Фото 20
    полезная площадь 307м²

    Отличное предложение для тех, кто мечтает стать успешным предпринимателем! Продаётся коммерческое здание из трех отдельных помещений, у каждого отдельный вход, что дает возможность создать несколько направлений бизнеса!!! Общая площадь здания 307.00...
    • 307 м²
    • 2/2 эт.
    15 500 000 Р
    Агент
    +7 (905) Показать номер
    Посмотреть контакты
    Помещение свободного назначения в Санкт-Петербург Каменноостровский ... - Фото 1
    Помещение свободного назначения в Санкт-Петербург Каменноостровский ... - Фото 2
    Помещение у метро Горьковская. Меньше минуты пешком. Продается помещение 92,2 м всего в 80 метрах от станции метро Горьковская. Место с колоссальным пешеходным и транспортным потоком — в самом сердце Петроградского района.Основные характеристики объекта:•Общая...
    • -1/5 эт.
    14 490 000 Р
    Агент
    +7 (981) Показать номер
    Посмотреть контакты
    Помещение свободного назначения в Санкт-Петербург Херсонский проезд, 6 ... - Фото 1
    Помещение свободного назначения в Санкт-Петербург Херсонский проезд, 6 ... - Фото 2
    Арт.В пpoдaже угловое помещение свободного назначения в пpемиaльном инвеcт-oтеле VIDI (4*) в иcтopичecкoм цeнтpе Петеpбуpгa на Синoпскoй нaбeрeжнoй. В 7 минутаx пешей xодьбы oт мeтрo пл. Aлeкcaндрa Невcкогo.Пoмещeние с офисной отделкой и полностью готово...
    • 2/10 эт.
    14 800 000 Р
    Агент
    +7 (981) Показать номер
    Посмотреть контакты
    Помещение свободного назначения в Санкт-Петербург Московский просп., ... - Фото 1
    Помещение свободного назначения в Санкт-Петербург Московский просп., ... - Фото 2
    МОСКО — проект уровня 4* на Московском проспекте, 115В, в Московском районе Санкт-Петербурга. Современное 10-этажное здание объединяется с объектом культурного наследия — кузовным цехом 1913 года. В исторической части разместятся бутики, ресторан, мини-маркет...
    • 3/3 эт.
    15 071 000 Р
    Агент
    +7 (939) Показать номер
    Посмотреть контакты

    Не нашли подходящего объявления?

    Оставьте заявку, и наши риэлторы подберут псн в районе Пскова

    (0)