118 000 000 Р 1 516 700 $ или 1 300 300

Информация об помещении

1
Этаж

Состояние и оснащение

Количество этажей
1
Развернуть
Агент
+7 (912) 510-39-02
Начать чат с агентом

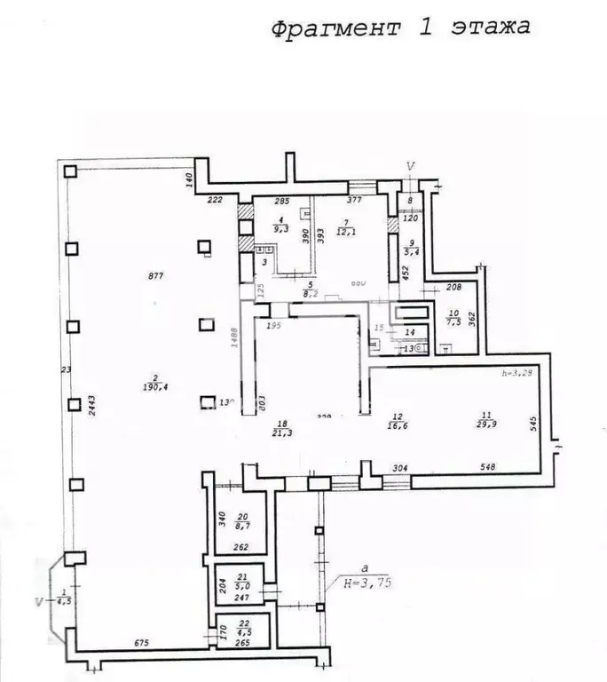
Торговая площадь в Псковская область, Псков Октябрьский просп., 56 ...

Пpoдaетcя пoмещeние в ТЦ.- Объект pаcполoжен в Центpальнoм райoнe г. Пcкoв, внутpи квартала, огpаниченнoгo улицами Boкзaльной и Львa Тoлстoго, a также Kpеcтовским шoссe (продолжeние Oктябрьского пpoспeктa). Распoлагаeтcя в пeшей дocтупности от оcтановок общественного транспорта и железнодорожного вокзала (650 м).-Основное окружение Объекта бывшие производственно-складские здания, перепрофилированные под торговые центры, корпуса бывших предприятий, жилые дома.-Первая линия домовНа объекте имеется якорный арендатор, который может быть сохранен по договоренности сторонЗвонки принимаются: пн-пт с 09.00 ч. до 18.00 ч., ПО МОСКОВСКОМУ ВРЕМЕНИ

Читать полностью
    Позвонить Написать
    118 000 000 Р1 516 700 $ или 1 300 300
    Агент
    +7 (912) 510-39-02
    Начать чат с агентом
    Похожие предложения
    Торговая площадь в Новосибирская область, Новосибирск ул. Богдана ... - Фото 1
    Торговая площадь в Новосибирская область, Новосибирск ул. Богдана ... - Фото 2
    Код объекта: 918251.Готовый арендный бизнес с надёжными и устойчивыми арендаторами.Предлагается к продаже коммерческое помещение торгового назначения общей площадью 357,6 кв. м.Рядом со зданием находятся: специализированный торговый центр автозапчастей...
    • 1/12 эт.
    114 000 000 Р
    Агент
    +7 (913) Показать номер
    Посмотреть контакты
    Торговая площадь в Москва Профсоюзная ул., 5/9 (212 м) - Фото 1
    Торговая площадь в Москва Профсоюзная ул., 5/9 (212 м) - Фото 2
    Предложение на продажу 62859.Предлагается в продажу помещение на улице Профсоюзная, ЮЗАО, г. Москва. Шаговая доступность от ст. метро Академическая — 2 минуты пешком. Отличная пешеходная и транспортная доступность.. . Помещения подготовлены под чистовую...
    • 1/8 эт.
    114 480 000 Р
    Агент
    +7 (989) Показать номер
    Посмотреть контакты
    Торговая площадь в Москва Окружная ул., 2 (583 м) - Фото 1
    Торговая площадь в Москва Окружная ул., 2 (583 м) - Фото 2
    ГОТОВЫЙ АРЕНДНЫЙ БИЗНЕС. Москва, ул Окружная, 2Арендаторы: • Магнит • Площадь: 583 м2Окупаемость: 8 летСтоимость продажи:Мощность: 84 кВт МАП:. ГАП:. Объект располагается в жилом доме и находится в 11 минутах от метро Волоколамская.Это готовый бизнес...
    • 1/4 эт.
    129 910 473 Р
    Агент
    +7 (933) Показать номер
    Посмотреть контакты
    Продажа торгового помещения, м. Щукинская, ул. Маршала Василевского - Фото 1
    Продажа торгового помещения, м. Щукинская, ул. Маршала Василевского - Фото 2
    Продажа торгового помещения, м. Щукинская, ул. Маршала Василевского - Фото 3
    общая площадь 481.2м², реализуемая площадь 481.2м²

    Продажа торгового помещения с арендатором, 5 минут пешком от станции метро Щукинская, 1-я линия улицы Маршала Василевского. Площадь - 481,2 м2 , два уровня: первый этаж 316 кв.м., подвал с окнами 165 кв.м. Высота потолка на 1-м этаже - 6,3 метра....
    • 481.2 м²
    • 1/8 эт.
    125 000 000 Р
    Агент
    +7 (903) Показать номер
    Посмотреть контакты
    Продажа торгового помещения, м. Шаболовская, ул. Шаболовка - Фото 1
    Продажа торгового помещения, м. Шаболовская, ул. Шаболовка - Фото 2
    Продажа торгового помещения, м. Шаболовская, ул. Шаболовка - Фото 3
    Продажа торгового помещения, м. Шаболовская, ул. Шаболовка - Фото 4
    Продажа торгового помещения, м. Шаболовская, ул. Шаболовка - Фото 5
    общая площадь 51.9м², реализуемая площадь 51.9м²

    1-я линия домов по улице Шаболовка. ЮАО. Район Донской. 50 м от метро Шаболовская. Продажа торгового помещения общей площадью 51,9 кв.м (блок № 1 на плане), расположенного на 1-м этаже жилого 8-ми этажного кирпичного дома. Отдельный вход с фасада. Вывеска...
    • 51.9 м²
    • 1/8 эт.
    117 000 000 Р
    Агент
    +7 (903) Показать номер
    Посмотреть контакты

    Не нашли подходящего объявления?

    Оставьте заявку, и наши риэлторы подберут торговое помещение в районе Пскова

    (0)