8 246 256 Р 101 900 $ или 88 300

Информация о квартире

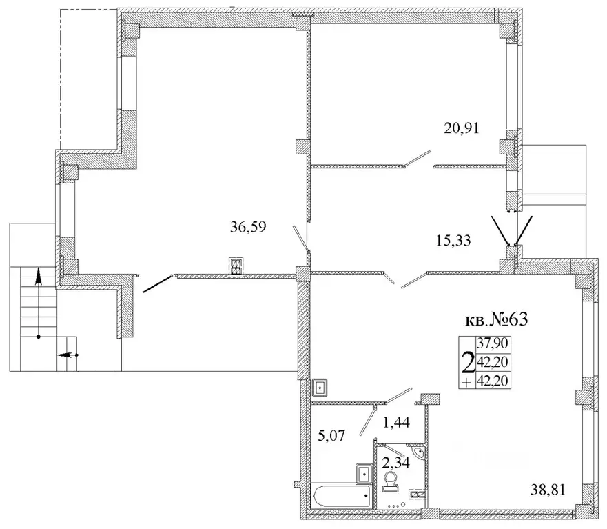
89 м2
Площадь
45 м2
Жилая
30 м2
Кухня
3
Комнаты
1
Этаж
16
Этажность
Развернуть
Агент
+7 (939) 409-94-59
Начать чат с агентом

3-к кв. Псковская область, Псковский район, Завеличенская волость, д. ...

Продается 3-комнатная квартира, 89.40 кв. м, по адресу Россия, Псковская область, г. Псков, ул. Дмитрия Яковлева, 6. Этаж 1/16.Рассрочка 0 - Первый взнос 30 с ежеквартальной оплатой в течении 12 месяцев.- Первый взнос 40 с внесением оставшейся суммы через 6 месяцев.- Первый взнос 50 с внесением оставшейся суммы через 12 месяцев.Квартира в кирпично-монолитном доме ЖК Атмосфера от надежного Псковского застройщика ГК Реставрационная мастерская (дата основания 1946 год). Сдача декабрь 2026г.Место:Жилой дом располагается в самом популярном и развитом районе Пскова Завеличье , всё в пешей доступности:- Новая Школа Nо27 находится во дворе дома.- Детский сад - 7 минут- ТЦ Фьорд Плаза , Лента , Лемана про - 10 минут- Спортивный комплекс Ледовый дворец -15 минутНаши стандарты:- Железобетонные перегородки между квартирами с повышенной звукоизоляцией - Авторский дизайн мест общего пользования и придомовой территории;- Видеонаблюдение и контроль доступа;- Высококачественные окна и входные двери;- Высокие потолки в квартире 2,7 м. в чистоте ;- Возможно выполнение отделки Под ключ по фиксированной цена с гарантией Застройщика (в т.ч. с включением в ипотеку);- Ваши деньги в полной безопасности- оформление в строгом соответствии с ФЗ-214, через эскроу-счета, никаких серых схем - Помощь в одобрении ипотекиРаботаем:-Ипотека (любая)-Рассрочка-Сертификаты.Квартира продается надежным Застройщиком, - ГК Реставрационная мастерская , 100 гарантия юридической чистоты.Мы всегда готовы обсудить индивидуальные условия.Заходите к нам в центральный офис продаж по адресу: г. Псков, ул. Линейная, д. 3, звоните, пишите, если не ответили сразу- обязательно Вам перезвоним.Вышлем фото и видео, проведем онлайн показ и дистанционноеоформление сделки.На объекте работает офис продаж (предварительная запись)Полное сопровождение Застройщика, все хлопоты берем на себя

Читать полностью
    Позвонить Написать
    8 246 256 Р101 900 $ или 88 300
    Агент
    +7 (939) 409-94-59
    Начать чат с агентом
    Похожие предложения
    2-к кв. Псковская область, Псковский район, Писковичская волость, д. ... - Фото 1
    2-к кв. Псковская область, Псковский район, Писковичская волость, д. ... - Фото 2
    2-комнатная квартира, общая площадь 119м², жилая 58м²

    Продается 2-комнатная квартира, 119.00 кв. м, по адресу Россия, Псковская область, Писковичи, ул. Гецентова, 7. Этаж 1/9.Квартира продается Застройщиком. Подходит под условия льготной ипотеки( семейной,IT, военной)Жилой комплекс Видныйасположен в 4 километрах...
    • 119 м²
    • 2-ком
    • 1/9 эт.
    • монолит
    8 300 000 Р
    Агент
    +7 (939) Показать номер
    Посмотреть контакты
    2-к кв. Псковская область, Псковский район, Писковичская волость, д. ... - Фото 1
    2-к кв. Псковская область, Псковский район, Писковичская волость, д. ... - Фото 2
    2-комнатная квартира, общая площадь 120м², жилая 40м², кухня 15м²

    Продается 2-комнатная квартира, 120.50 кв. м, по адресу Россия, Псковская область, Писковичи, ул. Гецентова, 5. Этаж 1/9.Квартира продается Застройщиком. Подходит под условия льготной ипотеки( семейной,IT, военной)Жилой комплекс Видныйасположен в 4 километрах...
    • 120 м²
    • 2-ком
    • 1/9 эт.
    • монолит
    8 300 000 Р
    Агент
    +7 (939) Показать номер
    Посмотреть контакты
    1-к кв. Псковская область, Псков Пароменская ул., 28 (51.4 м) - Фото 1
    1-к кв. Псковская область, Псков Пароменская ул., 28 (51.4 м) - Фото 2
    1-комнатная квартира, общая площадь 51м²

    Продаётся 1-комнатная квартира в строящемся доме (Пароменская,28), срок сдачи: II-кв. 2029, общей площадью 51.4 кв.м., на 4 этаже. Новый жилой комплекс Флагман от застройщика ГК Строим в Псковеасположен по адресу Россия, Псков, Пароменская улица.
    • 51 м²
    • 1-ком
    • 4/6 эт.
    8 121 200 Р
    Агент
    +7 (933) Показать номер
    Посмотреть контакты
    1-к кв. Псковская область, Псков Пароменская ул., 28 (51.7 м) - Фото 1
    1-к кв. Псковская область, Псков Пароменская ул., 28 (51.7 м) - Фото 2
    1-комнатная квартира, общая площадь 51м²

    Продаётся 1-комнатная квартира в строящемся доме (Пароменская,28), срок сдачи: II-кв. 2029, общей площадью 51.7 кв.м., на 2 этаже. Новый жилой комплекс Флагман от застройщика ГК Строим в Псковеасположен по адресу Россия, Псков, Пароменская улица.
    • 51 м²
    • 1-ком
    • 2/6 эт.
    8 168 600 Р
    Агент
    +7 (933) Показать номер
    Посмотреть контакты
    1-к кв. Псковская область, Псков Пароменская ул., 28 (51.4 м) - Фото 1
    1-к кв. Псковская область, Псков Пароменская ул., 28 (51.4 м) - Фото 2
    1-комнатная квартира, общая площадь 51м²

    Продаётся 1-комнатная квартира в строящемся доме (Пароменская,28), срок сдачи: II-кв. 2029, общей площадью 51.4 кв.м., на 3 этаже. Новый жилой комплекс Флагман от застройщика ГК Строим в Псковеасположен по адресу Россия, Псков, Пароменская улица.
    • 51 м²
    • 1-ком
    • 3/6 эт.
    8 121 200 Р
    Агент
    +7 (933) Показать номер
    Посмотреть контакты

    Не нашли подходящего объявления?

    Оставьте заявку, и наши риэлторы подберут квартиру в новостройке в районе Борисовичи

    (0)