Реализация объекта недвижимости приостановлена

Информация о квартире

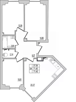
74.0 м2
Площадь
3
Комнаты
9
Этаж
9
Этажность
Развернуть

3-к кв. Псковская область, Псковский район, Завеличенская волость, д. ...

Продаётся 3-комнатная квартира в строящемся доме (Дом 3), срок сдачи: I-кв. 2028, общей площадью 74.6 кв.м., на 9 этаже. Расположение, транспортная доступность Жилой комплекс Спортивный кварталасположен в историческом районе Завеличье, в десяти минутах езды на автомобиле от центра Пскова. Главные достоинства района - низкая плотность застройки, благоприятные экологические условия и хорошо развитые транспортная сеть и инфраструктура. За две минуты можно выехать на Рижский проспект - трассу А212, которая соединяет Псков с Изборском и границей Эстонии, а также входит в европейскую магистраль Е77 до Венгрии, проходящую через Эстонию, Латвию, Литву, Польшу и Словакию. В двадцати минутах езды на машине находится аэропорт, в пятнадцати минутах - городской железнодорожный вокзал. В пятидесяти метрах от ближайшего корпуса останавливаются автобусы 2 и 2А, которые едут до железнодорожного вокзала, а в семи минутах ходьбы находится остановка еще десятка автобусов и маршрутных такси. Инфраструктура Жилой комплекс был назван Спортивным кварталом не случайно - в соседних зданиях расположены Ледовый дворец и спортивный комплекс Олимп с залом для игровых видов спорта и 25-метровым бассейном с четырьмя плавательными дорожками. Рядом находятся многочисленные объекты инфраструктуры: детский сад, инженерно-лингвистическая гимназия с обучением на русском и английском языках, мини-рынок Балтийский , супермаркеты Пятерочка и Магнит . В шаговой доступности - аптеки, почтовое и банковское отделения, небольшие магазины, кафе. Поблизости работает две автозаправки. За десять минут можно дойти до гипермаркета Лента , а за пятнадцать минут - до нового торгового комплекса Fjord Plaza, в котором на двух этажах разместятся магазины, гипермаркет, кинотеатр и фуд-корт. ТЦ Fjord Plaza создан по проекту британских архитекторов из бюро Dyer. Надежность застройщика Жилой комплекс Спортивный квартал - проект группы компаний Стройиндустрия , многопрофильного холдинга, ведущего строительную, инвестиционную и производственную деятельность. Основная специализация в строительстве - жилье, коммерческая недвижимость и производственные здания. Компания занимается всеми видами общестроительных работ, в том числе прокладкой автодорог и инженерных сетей. В составе холдинга - завод ЖБИ, строительное и дорожное управления, управление механизации (более ста единиц техники). Штат работников превышает 400 человек. Проект ЖК Спортивный квартал был начат в 2016 году. Функции застройщика выполняла компания Псковжилстрой . Первая очередь (д.14А) была введена в эксплуатацию в апреле 2018 года. Архитектура ЖК Спортивный квартал - девятиэтажные кирпичные (ул. Балтийская, д.14А; д. 16; 20а) и монолитно-кирпичные (д.16А; 14) дома. В монолитно-кирпичном домеасположено 112 квартир с улучшенными планировками. Площадь однокомнатных квартир от 49 кв.м., двухкомнатных - от 68 кв.м., трехкомнатных - от 93 кв.м. В двухсекционном доме 20А расположено 90 квартир: 36 однокомнатных,

Читать полностью

    Реализация объекта недвижимости приостановлена

    Не нашли подходящего объявления?

    Оставьте заявку, и наши риэлторы подберут квартиру в новостройке в районе Борисовичи

    (0)