40 000 Р 493 $ или 425

Информация об помещении

2
Этаж

Состояние и оснащение

Количество этажей
2
Развернуть
Агент
Александр Дмитриев (А2 ГРУПП)
+7 (981) 223-83-08
Начать чат с агентом

Помещение свободного назначения в Псковская область, Великие Луки ...

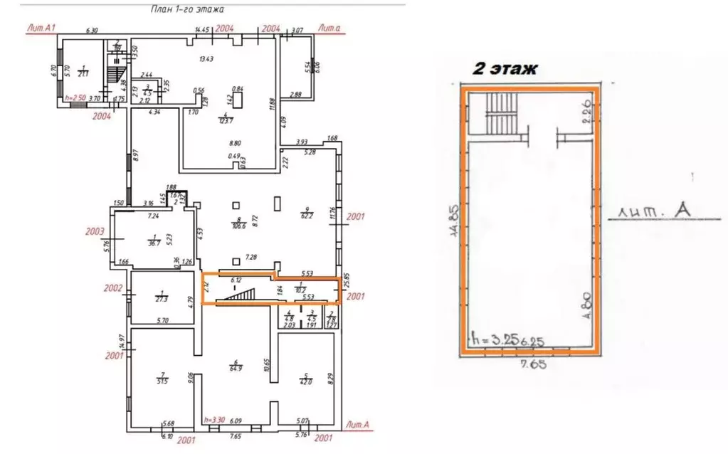
Арт.Площадь: 91,2 кв.м. (На плане выделен оранжевым)Этажность: 1 и 2 этажиМощность: По заявке кВтКоличество входов: 1 с улицы (отдельный вход)Высота потолков: 3,30 мЕсть парковкаВозможна работа 24/7

Читать полностью
    Позвонить Написать
    40 000 Р493 $ или 425
    Агент
    Александр Дмитриев (А2 ГРУПП)
    +7 (981) 223-83-08
    Начать чат с агентом
    Похожие предложения
    Помещение свободного назначения в Псковская область, Псков ул. Гоголя, ... - Фото 1
    Помещение свободного назначения в Псковская область, Псков ул. Гоголя, ... - Фото 2
    Арт.Сдаётся в аренду нежилое помещение свободного назначения.Помещение расположено в жилом многоквартирном доме, в цокольном этаже с окнами, с отдельным входом, площадью 217.5кв.м.Канализация, вода, отопление- центральные. Два сан. узла. Высота потолков...
    • 1/5 эт.
    40 000 Р
    Агент
    +7 (911) Показать номер
    Посмотреть контакты
    Помещение свободного назначения в Псковская область, Псков ул. 1-я ... - Фото 1
    Помещение свободного назначения в Псковская область, Псков ул. 1-я ... - Фото 2
    Сдается в аренду помещение свободного назначения. Помещение с отоплением, в помещении оборудован свой санузел, также есть подвальное помещение, в котором можно разместить небольшой склад для продукции. В подвальное помещение есть отдельный вход, что удобно...
    • 1/1 эт.
    40 000 Р
    Агент
    +7 (911) Показать номер
    Посмотреть контакты
    Помещение свободного назначения в Московская область, Раменский ... - Фото 1
    Помещение свободного назначения в Московская область, Раменский ... - Фото 2
    Арт.Номер лота: 3542384, Сдается помещение в Новохаритоново . отдельно стоящее здание 47 кв.м. свет, вода, тепло, канализация. можно под склад, торговлю под любой вид деятельности. цена все подробности по телефону. можно под склад, магазин, ПВЗ, производство....
    • 1/1 эт.
    40 000 Р
    Агент
    +7 (915) Показать номер
    Посмотреть контакты
    Помещение свободного назначения в Ульяновская область, Ульяновск ... - Фото 1
    Помещение свободного назначения в Ульяновская область, Ульяновск ... - Фото 2
    Описание Помещение Офис Склад Свободного Назначения 40 мБЕЗ КОМИССИИ ДЛЯ АРЕНДАТОРА Номер объекта в базе 11262Площадь: 40 кв.мЭтаж: цокольЭтажность: 3Все коммуникации проведеныДоступ в помещение: 24/7Количество входов: 1Коммунальные платежи: Оплачиваются...
    • -1/3 эт.
    40 000 Р
    Агент
    +7 (917) Показать номер
    Посмотреть контакты
    Помещение свободного назначения в Самарская область, Тольятти ... - Фото 1
    Помещение свободного назначения в Самарская область, Тольятти ... - Фото 2
    Сдам помещение площадью 73м., заведена вода, смонтированы силовые розетки, есть вытяжка, мойка, канализация, (стояли печи использовался как пищевой цех), подойдет также под кухню и пекарню, рассмотрим все предложения.Круглосуточный доступ, можно работать...
    • 1/1 эт.
    40 000 Р
    Агент
    +7 (917) Показать номер
    Посмотреть контакты

    Не нашли подходящего объявления?

    Оставьте заявку, и наши риэлторы подберут псн в районе Великих Луков

    (0)